ID CP2562606

Apartament 3 cam. DC, 81mp. / Arcu / 2 min de Carrefour Billa!

ID CP2562606

236,500 € (negociabil)

Apartament cu 3 camere de vânzare
Arcu, Iasi
73 mp
1996

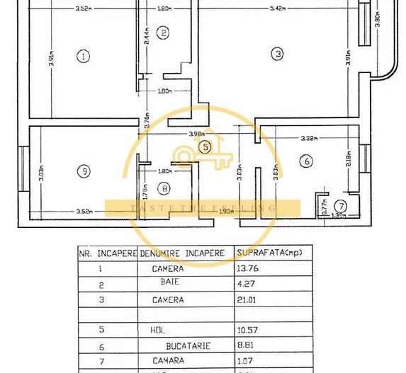
Home Imobiliare vă propune spre vânzare un apartament spațios cu 3 camere (2 dormitoare + living) și 2 băi (baie de serviciu și baie mare cu geam pentru ventilare naturală), având o suprafață utilă de 73 mp, la care se adaugă un balcon de 8 mp.

✅Apartamentul este situat în zona Arcu, în imediata apropiere a Carrefour Billa.

🔧 Detalii:

3 camere: 2 dormitoare + living

2 băi: o baie de serviciu și o baie mare cu geam (ventilare naturală)

Suprafață utilă: 73 mp

Balcon: 8 mp

Bucătărie cu debara

Mobilat și utilat

Centrală termică și calorifere schimbate în august 2024

🏠 Beneficii suplimentare:

🔹 Boxă intabulată la demisol, cu o suprafață de 11 mp, inclusă în preț

📍 Acces rapid la toate punctele de interes datorită locației

🔹 Supermarket la doar 2 minute de mers pe jos

🔹 Rețea extinsă de transport public în apropiere

🔹 Zonă liniștită

💰 Preț: 236.500 euro.

Această ofertă reprezintă o oportunitate excelentă de a achiziționa un apartament confortabil și bine situat, cu toate facilitățile necesare.

📞Pentru mai multe informații sau pentru a programa o vizionare, mă puteți apela la 0754936016 - Artiom

Citește mai mult

  • Tip apartament
    Apartament
  • Compartimentare
    Decomandat
  • Număr camere
    3
  • Dormitoare
    2
  • Număr bucătării
    1
  • Număr băi
    2
  • Geam la baie
    Da
  • Etaj
    1
  • Suprafață utilă
    73 mp
  • Suprafață totală
    81 mp
  • Disponibilitate
    Imediat
  • Orientare
    Sud-Est
  • Confort
    2
  • Stare interior
    Finisat clasic
  • Anul finisării
    2010
  • Număr balcoane
    1
  • Imobil
    Bloc de apart.
  • Stadiu construcție
    Finalizată
  • An construcție
    1996
  • Tip construcție
    Beton
  • Număr etaje clădire
    3
  • Cadastru
    Există
  • Intabulare
    Există
  • Mod de dobândire
    Contract
  • Certificat Energetic
    Există
  • Clasă Energetică
    B

Facilități

Aer condiționat
Apă
Apometre
Aragaz
Bucătărie închisă
Bucătărie mobilată
Bucătărie utilată
Cadă
Calorifere
Canalizare
CATV
Centrală proprie
Contor căldură
Contor electric
Contor gaz
Curent
Faianță
Frigider
Gaz
Geamuri termopan
Geamuri tripan
Glet
Hotă
Iluminat stradal
Internet
Izolație interioară
Lambriu
Mașină de spălat rufe
Mașină de spălat vase
Mijloace de transport în comun
Mobilat complet
Parchet
Parchet laminat
Șapă
Străzi asfaltate
Telefon
TV
Ușă intrare metal
Uși interior lemn
Vedere spre oraș
Artiom Ceban - Home Imobiliare
Artiom Ceban
Consilier Imobiliar

0754936016


Solicită chiar acum o vizionare
Telefon
Sună acum Solicită vizionare
Necesare:

Site-ul nu poate funcționa corect fără aceste cookie-uri. Vezi cookie-urile

Statistică:

Strângem statistici anonime despre voi, vizitatorii unici, pentru a vă îmbunătăți experiența dumneavoastră. Vezi cookie-urile

Marketing:

Pentru a ne promova mai eficient serviciile noastre, folosim cookies pentru a vă identifica și a vă oferi proprietăți și servicii personalizate. Vezi cookie-urile

Acest site folosește cookies, află detalii. Alege ce tipuri de cookies dorești să permitem: